Een statige bungalow bouwen?
Bouwbedrijf Hof kent de weg!
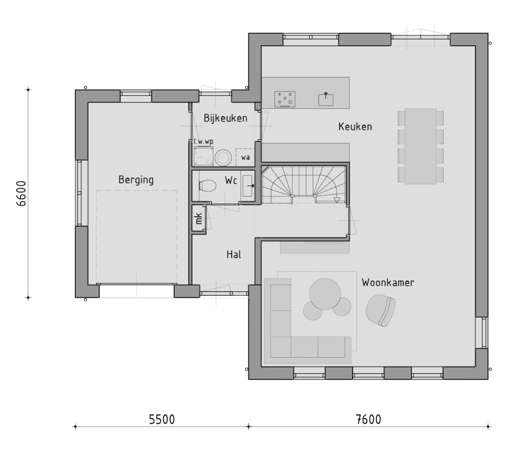
Naast de moderne bungalows die dankzij hun laagbouw fungeren als levensloopbestendige woningen, zijn onze statige bungalows een aangename variant. Hierbij wordt gekozen voor een hoge gevel die wordt geflankeerd door een aanbouw, waar bijvoorbeeld een garage of open keuken wordt geplaatst. Â
De statige bungalow wordt getypeerd door hoge zadeldaken met statige elementen, zoals een voordeuromlijsting en raamroedes. Vaak heeft de woning een L-vorm, de hoge nok wordt geflankeerd door een aanbouw. Hoewel de statige bungalow is gebaseerd op een klassieke stijl, kan ook deze woning in een modern jasje worden gestoken. Wij informeren u graag over de mogelijkheden.Â
Neem voor meer informatie over een statige bungalow bouwen contact met ons op.
Doe inspiratie op, voeg favoriete woningen toe aan je lijst en stel zo je droomwoning samen. Vraag vrijblijvend een gesprek aan waarin we je woonwensen kunnen bespreken.
Volg ons: