bouw je eigen
droomhuis met
Bouwbedrijf Hof

6 sfeervolle eengezinswoningen in Rozenbuurt, Zwaag.

6 sfeervolle eengezinswoningen in Rozenbuurt, Zwaag.

De eengezinswoningen zijn prachtig gelegen in deze nieuwe wijk dichtbij het centrum van de historische stad Hoorn. De woningen zijn voorzien van een lucht- warmtepomp in combinatie met alle verdiepingen vloerverwarming en inclusief pv- panelen. Elke woning is uitgevoerd met een vrijstaande houten berging die achter in de tuin is geplaatst.

Informatie

Zwaag

Totaal 6 woning

en

In opdracht van: Stark vastgoed B.V.

Verkoop: Eigen beheer

Verkoopinformatie

Jaspers van Diepen

T: 0229 573 600

Brochures

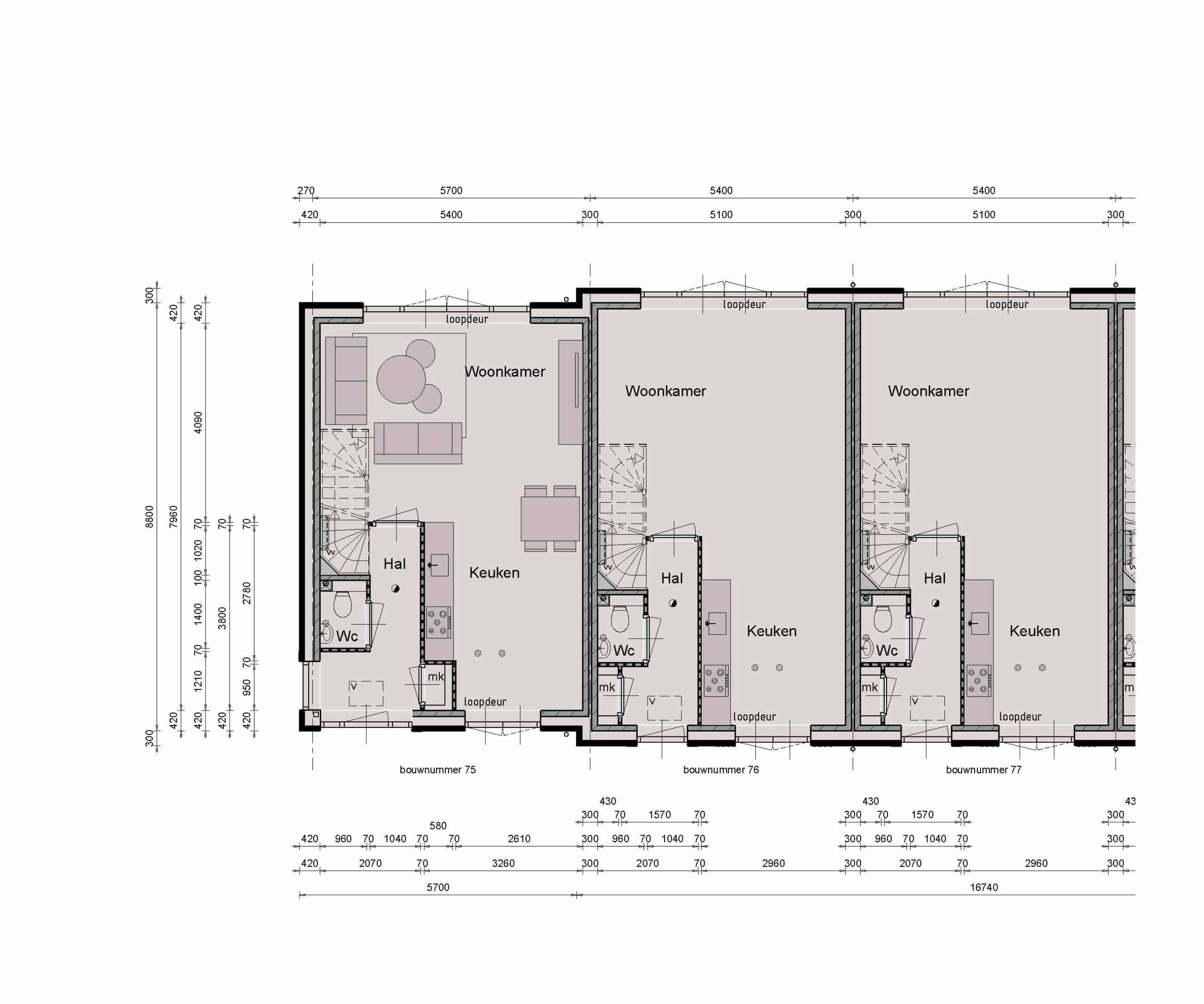
Begane grond 1
Begane grond 2
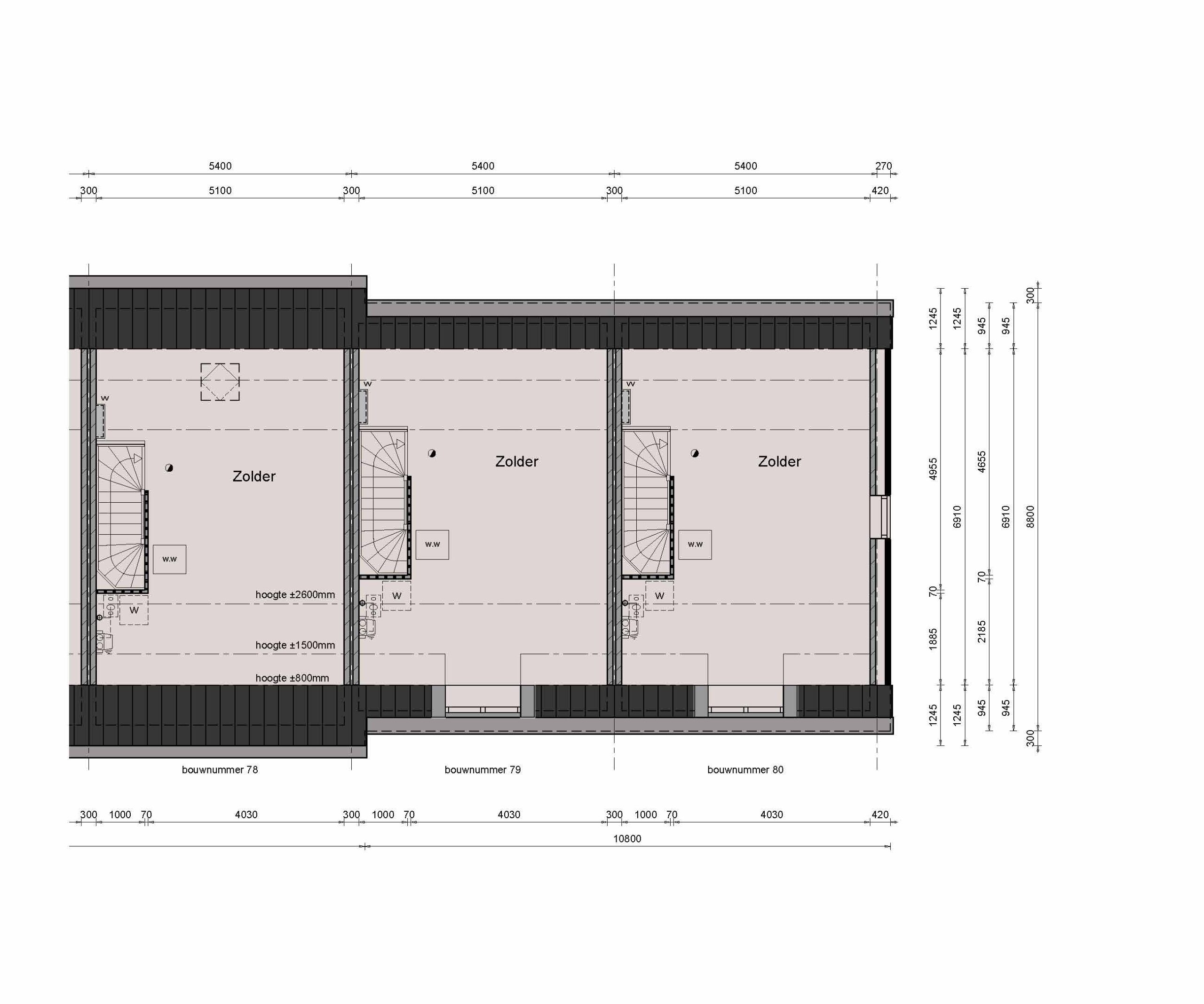
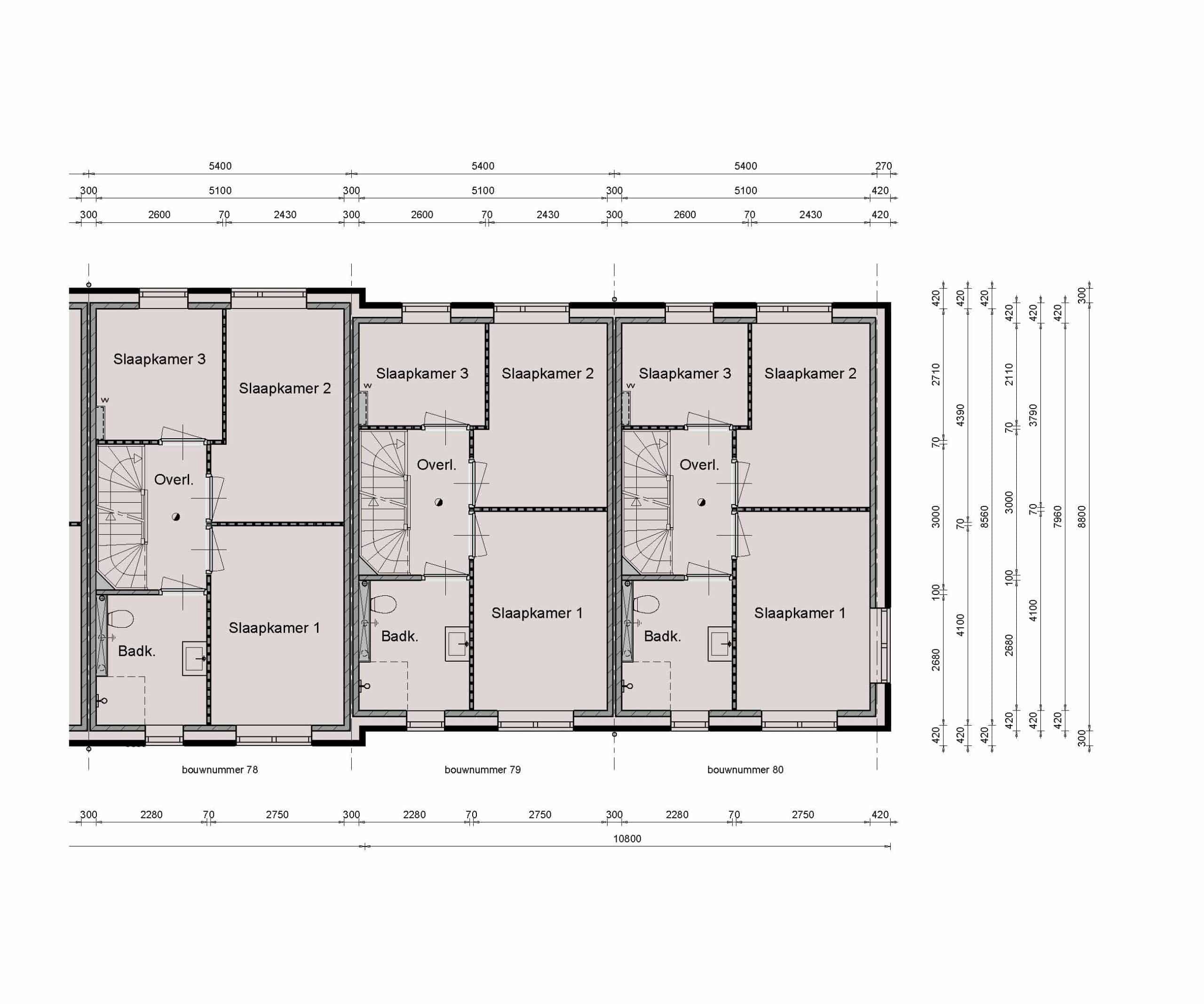
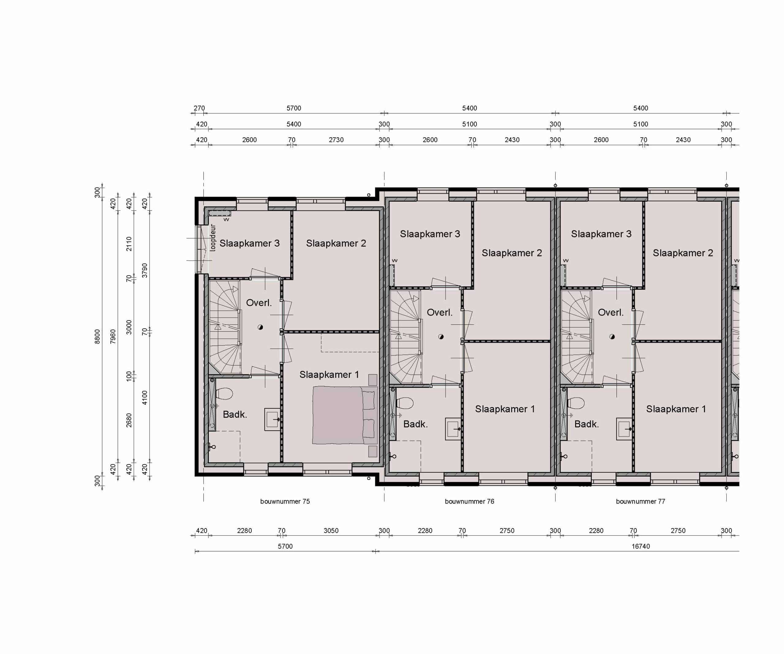
Eerste verdieping 1
Eerste verdieping 2
Situatieschets

Impressies

Woonboerderij

Landelijk wonen

Bungalow

Modern en huiselijk

Notariswoning

Wonen met klasse

Statige bungalow

Modern en statig

Patricierswoning

Vorstelijk wonen

Moderne woning

Eigentijds wonen

Schuurwoning

Stoer wonen

Klassiek engelse bouwstijl

Waan je in een andere tijd

Woningen voor senioren

Levensloop bestendig wonen

Herenhuis

Leef als een koning

2 onder 1 kap

Leef groot, denk groot

Dubbele zadelkap

Nieuwbouw met klasse

Doe inspiratie op, voeg favoriete woningen toe aan je lijst en stel zo je droomwoning samen. Vraag vrijblijvend een gesprek aan waarin we je woonwensen kunnen bespreken.